Luxury apartment for rent in Dreta de l’Eixample, Barcelona
- BARCELONA
- Eixample
9.900€ /month
- 384 m2
- 4 rooms
- 3 baths
REF. 5484
DESCRIPTION
LUXURY – FULLY EQUIPPED AND FURNISHED – UTILITIES INCLUDED
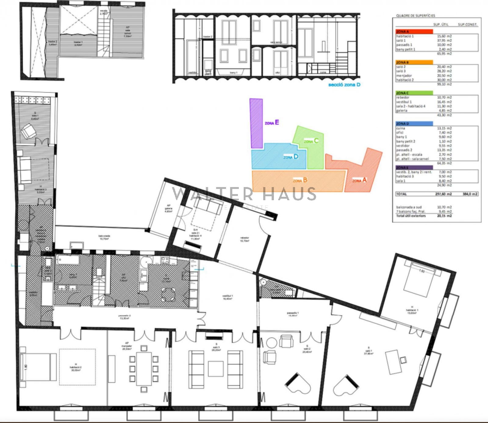
Beautiful and elegant apartment located in the prestigious Dreta de L’Eixample district. With 363 m² of living space, this apartment stands out for its spaciousness and natural light. Situated in a stately building with an elevator and concierge service, it offers a comfortable and exclusive environment just five minutes from Passeig de Sant Joan and the Arc de Triomf, as well as its proximity to the vibrant Plaça Urquinaona.
This property, renovated in 2017, is distinguished by its all-exterior layout, high ceilings, and original hydraulic tile floors. It features a spacious entrance hall, a large south-facing office with an enclosed gallery, and a nearly 70 m² living-dining room with three balconies overlooking the street, flooding every room with natural light. The bright and functional eat-in kitchen opens onto a private 10.7 m² terrace, ideal for enjoying the outdoors.
The rooms offer spaciousness and versatility: a 37 m² suite with an additional room perfect for an office or dressing room, another 30 m² double bedroom, and a large single bedroom. The property includes two full bathrooms, a guest toilet, and a second private terrace, as well as a practical loft that expands storage possibilities. The apartment features a concierge service, alarm system, and internet access. Water, electricity, and gas are included in the rent with responsible consumption. Pets are not allowed on the property.
Living in the Dreta de l’Eixample district means enjoying one of Barcelona’s most sought-after areas, with excellent transport links, amenities, and an unbeatable cultural and gastronomic scene. At Walter Haus, we work to ensure that every client finds their ideal home. Contact us and discover your next dream home in the heart of the city.
*In compliance with Law 12/2023, Law 18/2007, and Decree Law 1/2025, we inform you that:
Type of contract: rental for purposes other than housing (seasonal)
Large landlord status: No
Last contract price: not applicable
State Housing Rental Price Reference System: not applicable
Community fees and Property Tax (IBI): included
Utilities costs: not included in the price.
FEATURES
- Terrace
- Air conditioning
- Thermal insulation
- Alarm
- Furnished
- Built-in wardrobes
- Lift
- Bathtub
- Boiler
- Heating
- Gas cooker
- Double crystals
- Mirror crystals
- Oven
- Washing machine
- Dishwasher
- Microwave oven
- Fridge
- Iron
- Shower tray
- Ironing board
- Cooking utensils
- Balcony
- Fitted kitchen
- Commerce
- Pharmacy
- Gym
- Undreground
- Playground
- Parks and gardens
- Policemen
- Public transport
- View of the city
LOCATION
REQUEST MORE INFO
Leave us your information and our team will contact you as soon as possible.
SIMILAR PROPERTIES
- BARCELONA
- Sarrià - St. Gervasi
- 65 m2
- 1 rooms
- 1 baths








































