DESCRIPTION
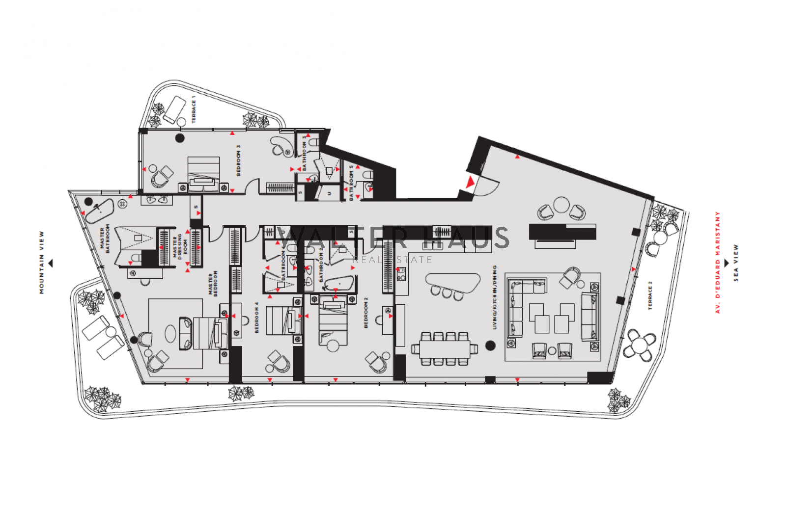
This exclusive and bright 386 m² apartment is located on the 19th exterior floor of a modern building with an elevator and stands out for its spacious, functional, and perfectly distributed spaces. The home has been designed to provide spaciousness and comfort in every room, with a contemporary design that adapts to today’s needs. The dual orientation and its privileged height allow for natural light throughout the day and unparalleled panoramic views of the sea and the city. Two private terraces, measuring 15.3 m² and 90.8 m², extend the residential experience to the outdoors.
The interior layout stands out for its functionality and elegance. The apartment has four bedrooms, five full bathrooms, and a guest toilet. The main living area includes a living room, dining room, and open kitchen with direct access to one of the private terraces, creating an ideal space for socializing and family life. The master suite has a dressing room, private bathroom, and exclusive access to its own terrace. The home also includes built-in wardrobes, a storage room, and a parking space included in the price, offering practicality and comfort in everyday life.
Antares Barcelona’s location is unbeatable, facing the Mediterranean Sea and with direct access to the city’s main access roads. This area combines the tranquility of the coast with proximity to Barcelona’s shops, services, and leisure facilities. The residential complex also offers more than 1,000 m² of common areas with a rooftop infinity pool, gym, private cinema, gardens, and a Michelin-starred restaurant.
At Walter Haus, we offer exclusive properties that fit your lifestyle.
Contact us today to start making your dream a reality.
FEATURES
- Game room
- Gym
- Shared swimming pool
- Tennis court
- Parking area
- Auditorium
- Terrace
- Storage room
- Children's area
- Air conditioning
- Acoustic insulation
- Thermal insulation
- Alarm
- Antenna parabolic
- Built-in wardrobes
- Lift
- Bathtub
- Whirlpool
- Turkish bath
- Reception area 24h
- Boiler
- Heating
- Heater
- Wi-Fi connection
- Smoked crystals
- Double crystals
- Mirror crystals
- Smoke detectors
- Intruder detector
- Flood detector
- Domotica
- Oven
- Jacuzzi
- Washing machine
- Dishwasher
- Microwave oven
- Modules
- Background music
- Fridge
- Electric shutters
- Induction plates
- Glass ceramic plates
- Iron
- Shower tray
- Pre-installation musical thread
- Fume outlet
- Dryer
- Ironing board
- Water heater
- Balcony
- Fitted kitchen
- Aerotermia
- Airport
- Highway
- Bank
- Firemen
- Mall center
- Downtown
- Near to the beach
- Commerce
- School
- Pharmacy
- Fuel station
- Gym
- Hospital
- Market
- Undreground
- Bus station
- Playground
- Swimming pool
- Policemen
- Taxis
- Public transport
- View of the city
- View of the mountain
- View of the beach
- View of the sea
- Shopping area
- Floor 19
- Exterior
LOCATION
REQUEST MORE INFO
Leave us your information and our team will contact you as soon as possible.
SOLICITA MÁS INFORMACIÓN
Déjanos tus datos y nuestro equipo te contactará lo antes posible.











































