Appartement à vendre et à rénover à Jeronimos, Madrid.
- MADRID
- Retiro
5.500.000€
- 403 m2
- 5 chambres
- 6 toilettes
REF. M11917V
DESCRIPTION
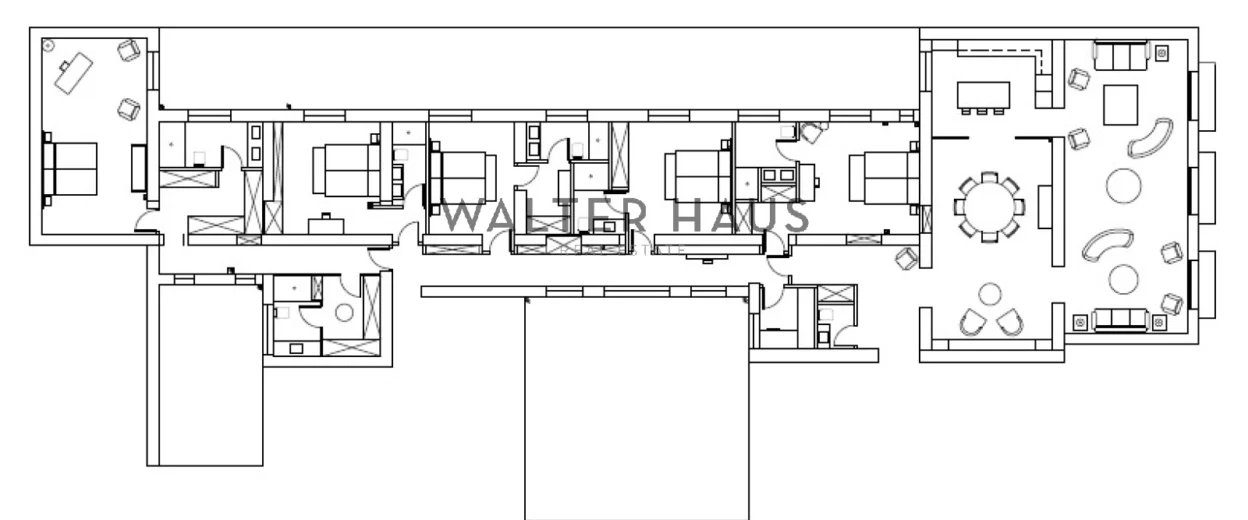
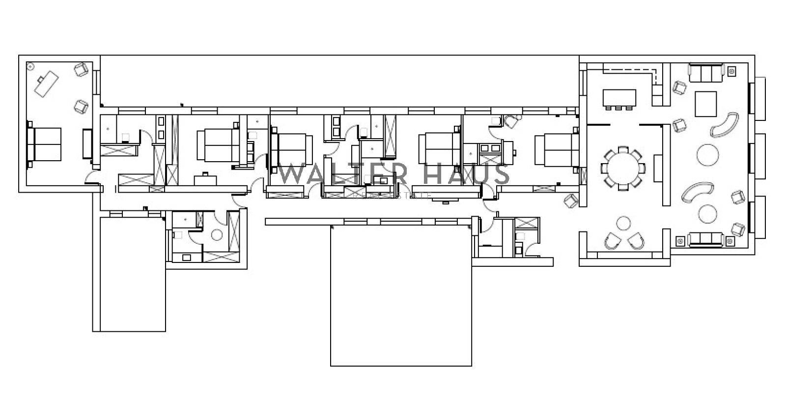
Situé au premier étage d’un immeuble classique et représentatif des années 1930, ce spacieux appartement de 403 m² se distingue par ses hauts plafonds. Entièrement rénové, il offre un espace vierge aux possibilités infinies pour une rénovation complète et sur mesure. Trois magnifiques balcons donnant sur la rue offrent une vue imprenable sur le parc du Retiro, garantissant une luminosité exceptionnelle et une sensation d’espace unique dans la capitale.
Le projet de rénovation permet la création d’un vaste séjour ouvert, divisé en deux espaces distincts, et d’une salle familiale. Une cuisine semi-intégrée, équipée d’électroménagers intégrés et d’un bar pour trois personnes, peut être aménagée et communiquer avec une salle à manger pouvant accueillir huit convives, ainsi qu’avec des toilettes invités et une buanderie. L’espace plus intime peut accueillir cinq chambres doubles, chacune avec sa propre salle de bains et des placards du sol au plafond. La suite parentale dispose d’un grand dressing.
L’immeuble bénéficie d’une entrée impeccablement entretenue, d’un service de conciergerie aux heures de bureau et d’un ascenseur au charme rétro. Située dans une rue prestigieuse du quartier de Recoletos, la propriété est entourée de terrasses de luxe, de cafés, de boutiques de grandes marques internationales et de banques. Les transports en commun sont excellents, avec un accès facile à plusieurs lignes de métro, de bus et de stations de taxis à deux pas de l’entrée.
Cette propriété représente une formidable opportunité d’investissement pour une famille souhaitant créer une résidence personnalisée dans l’un des quartiers les plus prisés de Madrid. La combinaison d’une belle surface habitable, de vues imprenables et d’un emplacement privilégié garantit une qualité de vie exceptionnelle. Chez Walter Haus, nous sommes à votre entière disposition pour vous présenter le potentiel de cette magnifique demeure et vous accompagner tout au long de votre projet.
CARACTÉRISTIQUES
- Accès handicapés
- Accès surveillé
- Ascenseur
- Chaudière
- Chauffage
- Gaz naturel
- Balcon
- Sans meubles
- Banque
- Commerce
- Pharmacie
- Salle de sport
- Marché
- Mètre
- Arrêt de bus
- Parcs et jardins
- Taxis
- Transports publics
- Zone commerciale
- Espace réception
- Conservation A Reformar
- Fin du chantier 1930
- Usine 1º
- Certificat énergétique No
- Exterior
- Orientación Este
EMPLACEMENT
DEMANDER PLUS D'INFORMATIONS
Laissez-nous vos informations et notre équipe vous contactera dans les plus brefs délais.
PROPRIÉTÉS SIMILAIRES
- BARCELONA
- Sant Martí
- 146 m2
- 3 chambres
- 2 toilettes
- MADRID
- Salamanca
- 220 m2
- 3 chambres
- 4 toilettes
