Appartement extérieur à vendre à rénover à Ríos Rosas, Madrid
- MADRID
- Chamberi
900.000€
- 117 m2
- 3 chambres
- 2 toilettes
REF. M20837V
DESCRIPTION
INVESTISSEMENT DE GRANDE VALEUR À CHAMBERÍ : Appartement actuellement loué, avec rentabilité immédiate (contrat en cours)
Découvrez une opportunité d’investissement exceptionnelle dans le quartier prisé de Chamberí, à Madrid. Cet impressionnant appartement, situé dans l’une des rues les plus prestigieuses de Ríos Rosas, offre 117 m² d’espace de vie élégant. Il est situé dans un immeuble prestigieux du quartier, avec un portier pour plus de sécurité et de confort, ainsi qu’un ascenseur. Idéal pour ceux qui recherchent un investissement sûr, ce logement est actuellement loué, garantissant une rentabilité immédiate grâce à un contrat de location en cours.
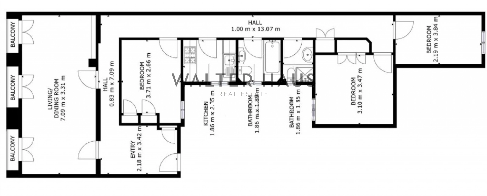
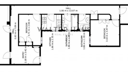
En entrant, un hall spacieux vous accueille et mène à un séjour lumineux. Cet espace, conçu pour le confort et la lumière naturelle, dispose de trois balcons donnant directement sur la rue, offrant une vue agréable et une ventilation optimale. La hauteur sous plafond remarquable de cet espace renforce la sensation d’espace et de raffinement. Un couloir dessert les pièces, dont une spacieuse chambre avec fenêtre et, attenante, une cuisine fonctionnelle également avec fenêtre. L’appartement dispose de trois chambres et de deux salles de bain complètes, garantissant intimité et confort à tous les résidents. Les deux chambres supplémentaires, situées au bout du couloir, sont tout aussi spacieuses et disposent de fenêtres permettant une ventilation transversale optimale et une abondante lumière naturelle.
Situé dans le quartier animé et central de Chamberí, plus précisément sur la célèbre rue Ríos Rosas, ce bien bénéficie d’un emplacement privilégié. Chamberí est réputé pour son architecture classique, ses boulevards arborés et sa vaste offre culturelle et de loisirs. La proximité des stations de métro, des arrêts de bus et d’une grande variété de services, notamment des boutiques exclusives, des restaurants gastronomiques et des centres culturels, fait de ce quartier un lieu de vie et d’investissement incomparable. Son excellente connectivité avec le reste de la capitale ajoute une valeur significative au bien.
Acquérir ce bien représente un investissement judicieux et sûr sur l’un des marchés immobiliers les plus stables et les plus prisés de Madrid. Le marché locatif actuel garantit un flux de revenus régulier dès le premier jour, vous libérant du souci de trouver un locataire. Son emplacement privilégié à Chamberí garantit une appréciation constante et une forte demande future. Il s’agit d’une opportunité exceptionnelle pour ceux qui souhaitent combiner un investissement rentable avec la possession d’un bien immobilier de grande valeur dans la capitale espagnole. Chez Walter Haus, nous sommes à votre disposition pour vous fournir plus d’informations et vous accompagner à chaque étape de cet investissement prometteur.
CARACTÉRISTIQUES
- Accès surveillé
- Isolation acoustique
- Isolation thermique
- Armoires encastrées
- Ascenseur
- Chaudière
- Chauffage
- Chauffage
- Double vitrage
- Réfrigérateur et congélateur
- Four
- Réfrigérateur
- Receveur de douche
- Aéroport
- Autoroute
- Banque
- Bibliothèque
- Sapeurs pompiers
- Campagne
- Terrain de golf
- Centre commercial
- Centre urbain
- Commerce
- École
- Station de train
- Pharmacie
- Station essence
- Salle de sport
- Hôpital
- Marché
- Mètre
- Arrêt de bus
- Aire de jeux
- Parcs et jardins
- Piscine
- Police
- Taxis
- Transports publics
- Vue sur la ville
- Zone commerciale
- Quartier historique
- Porte blindée
- Fin du chantier 1945
- Usine 2
- Ibi - Fiscalité 669
- Dépenses communautaires 289
- Certificat énergétique E
- Exterior
EMPLACEMENT
DEMANDER PLUS D'INFORMATIONS
Laissez-nous vos informations et notre équipe vous contactera dans les plus brefs délais.
PROPRIÉTÉS SIMILAIRES
- MADRID
- Chamberi
- 125 m2
- 4 chambres
- 2 toilettes





























