Piso en venta en la Dreta de l’Eixample, Barcelona
- BARCELONA
- Eixample
3.050.000€
- 384 m2
- 4 habitaciones
- 3 baños
REF. 4529V
DESCRIPCIÓN
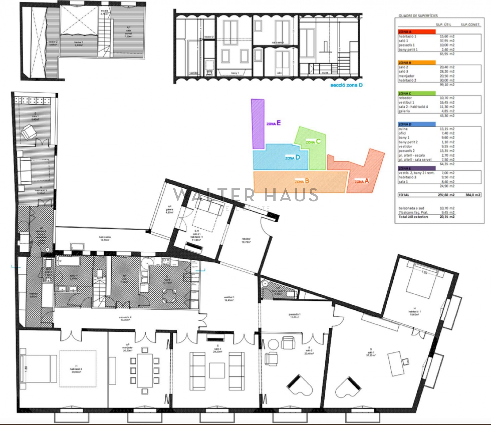
Precioso piso con mucha elegancia en venta ubicado en la prestigiosa Dreta de L’Eixample. Con una envidiable superficie de 363m2 construidos, esta vivienda se encuentra en una finca regia, a solo 5 minutos a pie de Paseo San Juan y el Arco de Triunfo, con proximidad a la vibrante Plaza Urquinaona.
Este lujoso inmueble, renovado en 2017, se distingue por su total exterioridad, sus techos altos y preciosos suelos hidráulicos. Al entrar, te recibirá un generoso espacio distribuidor y un amplio despacho orientado al sur, con una encantadora galería cerrada. El imponente salón comedor de casi 70m2, dividido en tres áreas, se abre a tres balcones a calle, proporcionando luz y vistas a calle.
Cada rincón de esta residencia es una obra maestra de diseño. A ambos lados del salón, encontramos habitaciones dobles muy espaciosas: una de 37m2 con acceso a otra habitación de 15m2 que puede usarse como despacho personal o gran vestidor; y otra de 30m2.
La cocina office, con acceso directo a una terraza privada de 10,70m2, es un paraíso luminoso orientado al sur. Además, un gran altillo sobre la cocina ofrece espacio adicional para adaptarse a tus necesidades.
A lo largo del pasillo encontramos un baño completo con ducha y bañera, y un aseo de cortesía para invitados.
También hay una zona de vestidor con acceso a un dormitorio individual amplio, un baño completo con plato de ducha y la segunda terraza muy privada de casi 10m2.
La finca regia cuenta con ascensor y servicio de conserjería, brindando la máxima comodidad y seguridad.
En Walter Haus nos esforzamos para convertir tus sueños en realidad. ¡Estamos aquí para hacer de tu visión una experiencia tangible!
CARACTERÍSTICAS
- Alarma
- Amueblado
- Ascensor
- Bañera
- Calefaccion
- Gas natural
- Horno
- Lavadora
- Lavavajillas
- Microondas
- Nevera
- Placas vitroceramica
- Plato de ducha
- Secadora
- video portero
- Balcón
- Cocina equipada
- Porteria
- Planta 4
- Exterior
LOCALIZACIÓN
SOLICITA MÁS INFORMACIÓN
Déjanos tus datos y nuestro equipo te contactará lo antes posible.
PROPIEDADES SIMILARES
- BARCELONA
- Eixample
- 178 m2
- 3 habitaciones
- 3 baños
- BARCELONA
- Eixample
- 113 m2
- 3 habitaciones
- 2 baños
- BARCELONA
- Sarrià - St. Gervasi
- 181 m2
- 4 habitaciones
- 3 baños








































